Осуществить заливку фундамента

  • 15 октября 2019, 21:09
  • 666
  • 1
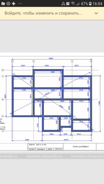
В пос. Кольцово необходимо выполнить армировку , заливку свай, сборку опалубки под ростверк, заливку фундамента и после набора прочности (6 дней) осуществить разопалубку..
Объем заливки 31 куб.м.
Екатеринбург

Когда надо сделать: Начало работ 18.10

Приоритет: частникам или фирмам, не важно

Бюджет: сравню предложения

Заявка закрыта

Добавить заявку на любую работу

Размещение заявки бесплатное. Отменить публикацию можно в любое время.
  • Создайте заявку
    Опишите какие работы необходимо сделать.
  • Получайте предложения
    Мастера вышлют вам цены на свои услуги.
  • Выбирайте мастера
    Сравнивайте цены, читайте отзывы, связывайтесь напрямую.
В нашей базе более 1000 бригад и фирм

Новые заявки

    • 27 декабря 2025, 12:07
    • Ирбит
    Мокрый фасад с утеплением 50мм около 170м2
    • 26 декабря 2025, 18:13
    • Екатеринбург
    • 1
    Есть перегородка при входе в гостиную из коридора, хочу, чтобы там была арка из гипсокартона
    • 10 ноября 2025, 07:13
    • Екатеринбург
    Требуется опытная бригада специалистов для отделки коттеджа. Перечень работ: финишная шпатлевка, грунтовка стен, наклейка обоев, декоративная штукатурка. 89028757444 Сергей. Объем стен - 500 м2
    • 12 сентября 2025, 18:23
    • Екатеринбург
    пристройка кухни (ш5 *д2) 10 м2 к каркасному домику
    установитъ камин для обогрева + обложка кирпичём
    оформитъ мансарду (решаитъ по ходу вопрос стен мансарды)
    перекрытъ крышу (старая совсем не годится)
    утепление стен (мин ватой + сайдинг)

    Убедителъная просъба составитъ грамотно смету, все нюансы по расходным материалам решаем через почту до составления договорана выполнение работ чтобы не получилосъ никаких "нежданчиков"
    • 01 сентября 2025, 20:15
    • Екатеринбург
    Буфет старый, деревянный. Ящики были на направляющих, которые пришли в негодность. Надо установить новые. Мы пытались своими силами, но что-то пошло не так )))