Дизайн-проект квартиры 153 м2 в классическом стиле в клубном доме

  • 05 апреля 2021, 11:05
  • 509
  • 0
Необходим дизайн-проект в классическом стиле

Общее описание:

1. Квартира расположена на последнем (8-ом) этаже многоквартирного дома клубного дома в центре города, окружена домами этажности 6-12 этажей
2. Квартира жилая, но текущая отделка не устраивает (рассматривается вариант в т.ч. полного сноса всех текущих стен и перепланировка)
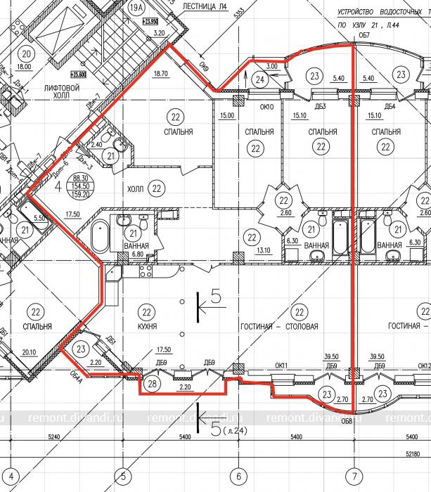
3. Половина окон выходит на центральную нагруженную улицу, вторая - во двор, площадь квартиры 153 м2
4. Система отопления/кондиционирования - Фанкойлы (трубы размещены в полу)
5. Приточная система вентиляции (блок нагнетателя - на лестничной клетке перед входом в квартиру)
6. Над квартирой расположен технический этаж с оборудованием для обслуживания дома (приточная вентиляция, чиллеры), частично над квартирой располагается пентхаус с джакузи, стены с соседними квартирами хорошо пропускают звук (блоки)
7. Семья с двумя детьми и перспективой на трех + кот
8. Капитальные стены в виде опорных колонн и несущих стен, разделяющих квартиры свободной планировки
9. Высота потолков (без отделки) - 3 метра

Предпочтения:
1. Создание тихого (!!!), уютного пространства для комфортной, спокойной жизни в центре города
2. Просторная гостиная для игр детям
3. Раздельные спальни и санузлы (возможно объединенные душевые/ванные)
4. Гостевой санузел на входе в квартиру
5. Комнаты - близкие к прямоугольной форме
6. Закрытые балконы можно убрать (объединить с комнатами и утеплить)
7. Состав комнат: 2 детских (девочка и мальчик), спальня для родителей, гостиная (с возможностью переформировать в кабинет или детскую), кухня, столовая
8. В каждой спальне предусмотреть гардероб
9. В детских предусмотреть рабочее пространство для учебы
10. Пространство должно быть максимально эргономично и оптимизировано (минимум коридоров и неиспользуемых зон)
11. Приточная вентиляция должна быть выведена в каждую комнату и санузел (на входе в квартиру будет установлен дополнительный блок управления с кондиционированием/очисткой)
12. Кухня должна иметь широкую мойку, посуда и мойка не должна располагаться «на углу» для облегчения доступа. Нужно предусмотреть «кухонный островок»
13. Столовая зона должна иметь возможность размещения за один столом до 10 человек
14. Использовать по возможности имеющуюся мебель (стол, стулья, диван, кровати, гардеробная)
15. Тона светлые, спокойные, характерные для классических интерьеров (см.подборку)
16. Минимум гипсокартона в стенах и потолках, отсутствие участков плохой доступности (закарниз и т.п.)
17. Предусмотреть созданием низкоаллергенного пространства (минимальное количество «пылесборников») - исключить ниши, закарнизное освещение, длинные тяжелые шторы, ковры, а также места плохой доступности (см.п.16)
18. Материалы в отделке должны быть максимально нетоксичные, высококачественные
19. Ближе к центру квартиры (удаленно от жилых помещений) заложить щит для размещения ЭВМ (роутер, центр умного дома)
20. Место для размещения кота (туалет, миски, дом - возможно с креплением на стены и закрытие его на ночь :) )
21. Кладовая (2 высоких шкафа с открытыми полками + тумба/верстак) в отдельной комнате (возможно размещение на балконе)
22. Много источников света с раздельными выключателями

Прикладываю планировку от застройщика и дизайны квартир (по ссылке), которые импонируют
Дополнительно могу прислать план помещения и общедомовых коммуникаций в векторе

Нужно:
1) Планировка, учитывающая все предпочтения (в векторе)
2) 3д модель с прорисовкой по цветам, мебели, материалов (с исходником)

https://www.icloud.com/iclouddrive/0cZJFyQBT4USiH7l9SmTFbD1Q
Екатеринбург

Когда надо сделать: Качество проекта и точность расчета материала важнее сроков

Приоритет: частникам или фирмам, не важно

Бюджет: сравню предложения

Заявка закрыта

Добавить заявку на любую работу

Размещение заявки бесплатное. Отменить публикацию можно в любое время.
  • Создайте заявку
    Опишите какие работы необходимо сделать.
  • Получайте предложения
    Мастера вышлют вам цены на свои услуги.
  • Выбирайте мастера
    Сравнивайте цены, читайте отзывы, связывайтесь напрямую.
В нашей базе более 1000 бригад и фирм

Новые заявки

    • 10 ноября, 07:13
    • Екатеринбург
    Требуется опытная бригада специалистов для отделки коттеджа. Перечень работ: финишная шпатлевка, грунтовка стен, наклейка обоев, декоративная штукатурка. 89028757444 Сергей. Объем стен - 500 м2
    • 12 сентября, 18:23
    • Екатеринбург
    пристройка кухни (ш5 *д2) 10 м2 к каркасному домику
    установитъ камин для обогрева + обложка кирпичём
    оформитъ мансарду (решаитъ по ходу вопрос стен мансарды)
    перекрытъ крышу (старая совсем не годится)
    утепление стен (мин ватой + сайдинг)

    Убедителъная просъба составитъ грамотно смету, все нюансы по расходным материалам решаем через почту до составления договорана выполнение работ чтобы не получилосъ никаких "нежданчиков"
    • 01 сентября, 20:15
    • Екатеринбург
    Буфет старый, деревянный. Ящики были на направляющих, которые пришли в негодность. Надо установить новые. Мы пытались своими силами, но что-то пошло не так )))
    • 25 августа, 22:23
    • Екатеринбург
    Требуются каменщики
    По оплате кладка блока (240)-3000-3500куб
    Условия работы:
    * График: 5/2 (с 9:00 до 18:00, обед 1-1,5часа)
    * Стабильная, конкурентная заработная плата
    * Оплата по результатам работы
    Место работы:
    ТЦ «Золотой», ул. Крестинского, 60
    • 09 августа, 08:52
    • Екатеринбург
    Ремонт ванной комнаты под ключ, демонтаж напольной плитки от застройщика, демонтаж межкомантной двери. Монтаж межкомнатной двери,
    Монтаж теплого пола, монтаж кафельной плитки на стены и пол, экран под ванну из керамической плитки, монтаж разводки от пола под водяной полотенцесушитель, монтаж полотенцесушителя, добавление одной розетки.
    Монтаж сантехники (ванна, инсталляция унитаз, подвесная раковина с двумя ящиками, смесители 2 шт, зеркало с подсветкой, 2 шт полки) Шпатлевка покраска потолка, или натяжной потолок, монтаж потолочного светильника... Рассмотрю прямые предложения специалистов с опытом и хорошими отзывами по цене и срокам выполнения ремонта. Видео по запросу, тем кому интересна данная работа